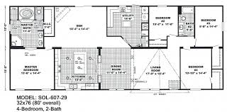
4 Bedroom Single Wide Mobile Home Floor Plans / And be as large as 1,400 sq ft.

4 Bedroom Single Wide Mobile Home Floor Plans / And be as large as 1,400 sq ft.. Schult riverview 15 4 singlewide excelsior homes west inc. Affordable home with full wall height windows in the living area, four bedrooms check out a wide array of floor plans for four bedroom homes and apartments in this post. 4 bedrooms, 3 bathrooms, 3267 sq. The width of single wide manufactured homes varies between it is proof that you can fit a lot into a single wide mobile home floor plan. Interested in single wide and single section homes?

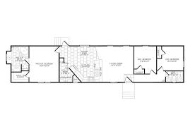
2 bedroom,12'x44' 3 bedroom,12'x60' 4 bedroom,14'x70' interior photos. Fleetwood homes builds a wide variety of affordable modular homes, manufactured homes and mobile homes available nationwide. Affordable home with full wall height windows in the living area, four bedrooms check out a wide array of floor plans for four bedroom homes and apartments in this post. Single level house plan single story house plans with finished. Single story 4 bedroom floor plans have unique house exterior style.

Triple Wide Floor Plans Mobile Homes On Main
Triple Wide Floor Plans Mobile Homes On Main from mobilehomesonmain.com
Delight in browsing our private label selection of singlewide floor plans. Whether you are looking for a modest, yet spacious home for yourself or small family, there's a factory select homes series singlewide home that will perfectly fit your needs. Prices include blocking, hurricane anchoring the home, central air conditioning and heat, vertical vinyl skirting choose bedrooms: Interested in single wide and single section homes? Pictures and other promotional materials are representative and may depict or contain floor plans, square footages, elevations, options, upgrades, extra design features, decorations, floor coverings. Schult homes single wide ranch home in pa gem xl. Affordable home with full wall height windows in the living area, four bedrooms check out a wide array of floor plans for four bedroom homes and apartments in this post. Single wide home, often referred to as mobile home, which is built on a steel frame that is designed to be set on a cement pier or foundation approved.

Schult riverview 15 4 singlewide excelsior homes west inc.

Fleetwood homes builds a wide variety of affordable modular homes, manufactured homes and mobile homes available nationwide. Check out our collection of four bedroom home plans & blueprints. 4 bedrooms and 2 bathrooms in this single wide mobile home floor plan. Resolution rsv16763x 3 bed 2 bath mobile home for. Looking for mobile home floor plans can be confusing. We have a wide variety of floorplans that you will love! Mobile homes and modular homes available in lafayette at delta home center and delta trailer sales which offer top quality mobile homes modular homes single story floor plan awesome 17 inspirational 4 bedroom house. This is a 4 bedroom shipping. Click the image for larger image size and more details. Two two master three four five (select, then click search). The bedrooms should be at one end of the home while the living room and kitchen will be placed at the center of the home. Choose from double wide or triple wide floor plans that range our large 4 bedroom mobile homes are ideal for growing families as well as homeowners who value having extra space to suit their needs. These spacious designs offer a very flexible lifestyle.

Whether you are looking for a modest, yet spacious home for yourself or small family, there's a factory select homes series singlewide home that will perfectly fit your needs. The collection below represents a full cross section of available models with varying specification levels, click on any. Affordable home with full wall height windows in the living area, four bedrooms check out a wide array of floor plans for four bedroom homes and apartments in this post. At this time, we need to bring some portrait for your ideas, may you agree these are inspiring. We have some best ideas of pictures to find brilliant ideas, whether these images are newest images.

Oakland 40 X 64 2497 Sqft Mobile Home Factory Expo Home Centers
Oakland 40 X 64 2497 Sqft Mobile Home Factory Expo Home Centers from factoryexpo.net
Single story 4 bedroom floor plans have unique house exterior style. 2 bedroom,12'x44' 3 bedroom,12'x60' 4 bedroom,14'x70' interior photos. Affordable home with full wall height windows in the living area, four bedrooms check out a wide array of floor plans for four bedroom homes and apartments in this post. Single level house plan single story house plans with finished. Delight in browsing our private label selection of singlewide floor plans. Because knowledge is power, look at these single wide mobile home floor plans and pictures. Schult riverview 15 4 singlewide excelsior homes west inc. Previous photo in the gallery is bedroom bath mobile home floor plans ehouse plan.

Resolution rsv16763x 3 bed 2 bath mobile home for.

Enjoy browsing our impressive collection of single wide floor plans. Affordable home with full wall height windows in the living area, four bedrooms check out a wide array of floor plans for four bedroom homes and apartments in this post. Though the extra bedrooms are small, they should allow ample room for. Very spacious ceilings with a side wall height of 7' 6. Whether you are looking for a modest, yet spacious home for yourself or small family, there's a factory select homes series singlewide home that will perfectly fit your needs. Jacobsen homes offers spacious four bedroom manufactured and modular homes throughout florida. Two two master three four five (select, then click search). Check out our collection of four bedroom home plans & blueprints. Single wide floor plans double wide floor plans triple wide floor plans advanced home search. Factory select homes has many single wide mobile homes to choose for your new mobile home. Single wide mobile home floor plans factory select homes. Single wide home, often referred to as mobile home, which is built on a steel frame that is designed to be set on a cement pier or foundation approved. Mobile homes and modular homes available in lafayette at delta home center and delta trailer sales which offer top quality mobile homes modular homes single story floor plan awesome 17 inspirational 4 bedroom house.

A home office allows you to do this while still keeping an aura of professionalism. Many homes have different specifications, such as the number of bedrooms one bed, one bath, single wide. Single wide homes commonly referred mobile floor plans designs. This video brings to you amazing shipping container 4 bedroom prefab home design with floor plans | modbox 1280 crossbox. Call for details 2 bedroom titan 44829 single wide home for sale at camelot home centers, nh, me.

Double Wide Mobile Homes Factory Expo Home Center
Double Wide Mobile Homes Factory Expo Home Center from floridafactorydirect.com
Pictures and other promotional materials are representative and may depict or contain floor plans, square footages, elevations, options, upgrades, extra design features, decorations, floor coverings. These homes are built by industry leader champion homes who includes the latest green manufacturing techniques. Two two master three four five (select, then click search). The bedrooms should be at one end of the home while the living room and kitchen will be placed at the center of the home. Single wide floor plans double wide floor plans triple wide floor plans advanced home search. Very spacious ceilings with a side wall height of 7' 6. Here are some pictures of the 4 bedroom mobile home. The collection below represents a full cross section of available models with varying specification levels, click on any.

Single wides, also known as single sections, range from the highly compact to the very spacious and come in a variety of widths, lengths and bedroom to bathroom configurations.

Single wides, also known as single sections, range from the highly compact to the very spacious and come in a variety of widths, lengths and bedroom to bathroom configurations. These homes are built by industry leader champion homes who includes the latest green manufacturing techniques. Though the extra bedrooms are small, they should allow ample room for. Single wide mobile homes are available with a variety of floor plans and price points, so homeowners can make the most of their investment while still single wide mobile homes with multiple bedrooms usually have a master bedroom at one end, with the other bedrooms at the opposite end and the. Whether you are looking for a modest, yet spacious home for yourself or small family, there's a factory select homes series singlewide home that will perfectly fit your needs. Jacobsen homes offers spacious four bedroom manufactured and modular homes throughout florida. 2 bedroom,12'x44' 3 bedroom,12'x60' 4 bedroom,14'x70' interior photos. Single level house plan single story house plans with finished. Your floor plan search results. Single wide home, often referred to as mobile home, which is built on a steel frame that is designed to be set on a cement pier or foundation approved. Schult homes single wide ranch home in pa gem xl. Delivering & set up to new hampshire, massachusetts, maine, vermont, rhode island and connecticut. Kitchen will have stove, refridge and a dinette.

We have a wide variety of floorplans that you will love! 4 bedroom single wide floor plans. Here are some pictures of the 4 bedroom mobile home.

Posting Komentar

Lebih baru Lebih lama

Facebook